4096 Audubon Dr, Marietta, GA 30068
Toggle Navigation
Videos
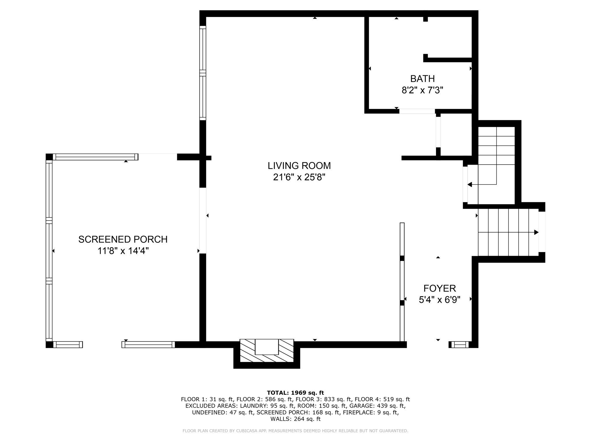
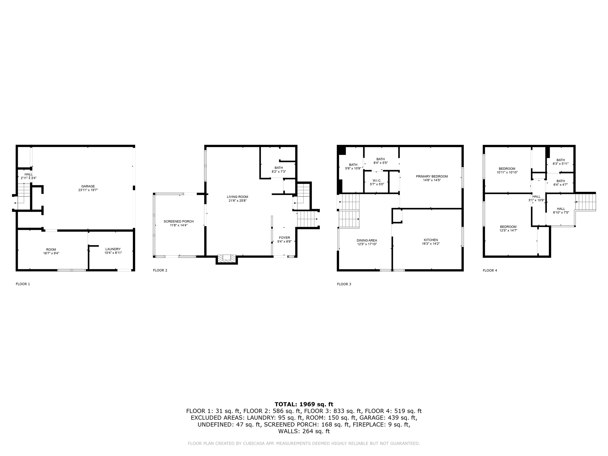
Floor Plans
Map
4096 Audubon Dr
Marietta, GA 30068
Scroll to Content
Videos
Floor Plans
Slideshow
Photo Grid
Hide
Previous
Next